[Coming Soon] Stunning New Condos on Edge of Boston Common

[Coming Soon] Stunning New Condos on Edge of Boston Common

With stunning views of the Boston Common and a stellar location in the midst of development activity in Boston, 171 Tremont Street will offer a very limited amount of boutique living opportunities. Standing at only 12 floors, the floor-through homes will feature the finishes and amenities that we have seen in other developments in the area. More details are being released as this project was recently greenlit by BPDA and will be available here as we receive them! Sign up for updates.

Photos

This slideshow requires JavaScript.

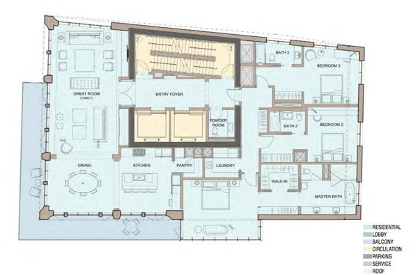
Typical Floor Plan

Screen Shot 2016-10-24 at 4.38.30 PM




171 Tremont Street CTA




Continue Reading
two-column-form