A Back Bay One Bedroom Under $400,000?!?!
You heard us right, we just listed a one bedroom unit in Back Bay for only $375,000. This 623 square foot condo has a great layout and front facing, southern exposure. All the bones are in place for you to truly customize the Back Bay home of your dreams.
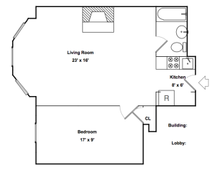
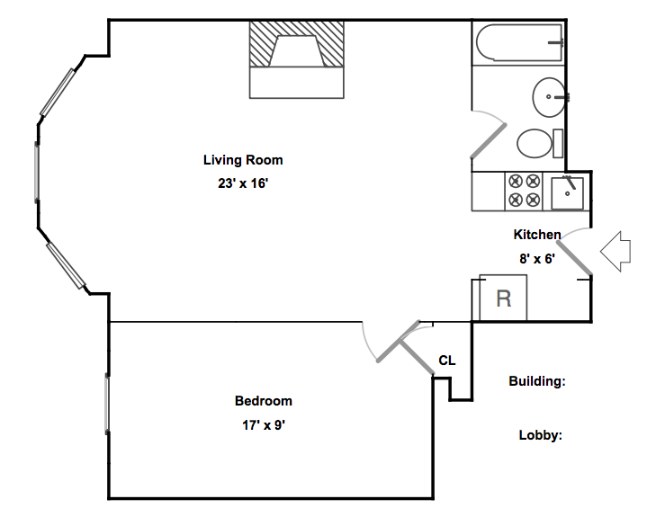
Take a look at this great floor plan:
As you can see, the living space is a huge area – creating lots of options for layout and decorating. The bedroom is also a nice size and can fit a queen size bed as well as other comforts. The kitchen and bathroom areas are ready for your custom touches.
The Location
Only a few blocks away from Boston’s famous Newbury shopping district, this condo is central to all you love about Boston. Close proximity to Storrow Drive makes commuting a cinch. You can also walk a block to the Charles River and enjoy all the festivities on a warm day.
Pictures
Here are a few more pictures of this great buy! Contact us for more or to set up a showing!
Find out more about this great listing!




